Dawny budynek WuDeTu w Kamieńsku wraz z całym otoczeniem, zmieni swoje oblicze. W ostatnich dniach został złożony wniosek do Urzędu Marszałkowskiego w Łodzi o dofinansowanie przebudowy tego obiektu.
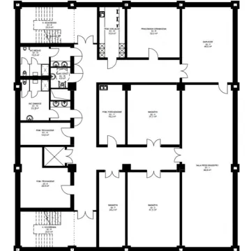
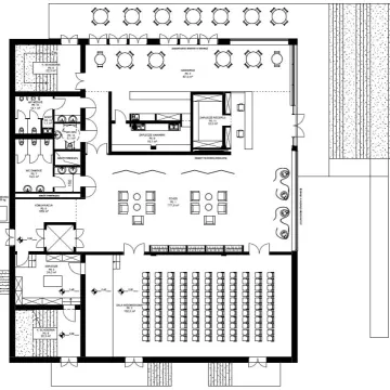
Projekt obejmuje przebudowę wszystkich 3 kondygnacji budynku. Powstanie nowoczesna i wielofunkcyjna przestrzeń, w której realizowane będą wydarzenia kulturalne, edukacyjne i rekreacyjne dostosowane do potrzeb różnych grup społecznych i wiekowych. W budynku znajdą się m.in.: sala widowiskowo-kinowa, sala prób dla Młodzieżowa Orkiestra Dęta OSP Kamieńsk, sala warsztatów ceramicznych, biblioteka z czytelnią, sale warsztatowe, pomieszczenia dla NGO (w tym dla seniorów), kawiarnia z tarasem.
Zlikwidowana zostanie również część skarpy. Budynek będzie w pełni przystosowany do potrzeb osób niepełnosprawnych. Projekt uwzględnia wdrożenie proekologicznych rozwiązań takich jak: fotowoltaika, pompy ciepła, system retencji wód opadowych, energooszczędne technologie oraz zielona ściana frontowa. Szacunkowa wartość projektu utworzenia Centrum Kultury, Sportu i Turystyki w Kamieńsku to 17,5 mln zł.
Wysokość dofinansowania, o które zabiega Kamieńsk ze środków UE to prawie 16 mln zł.





